A new gated waterfront community is coming to Lake Nona! Located along the western side of Narcoossee Road, between Laureate Park and Fells Landing, Isles of Lake Nona is scheduled to open in 2020.

Pulte Homes recently purchased 142 acres for the community that will feature more than 500 residences. Home styles include a selection of single-family homes, townhomes and bungalows with open concept floor plans, designer finishes, and energy efficient features. Pulte will offer design customization to satisfy individual preferences and family lifestyles.
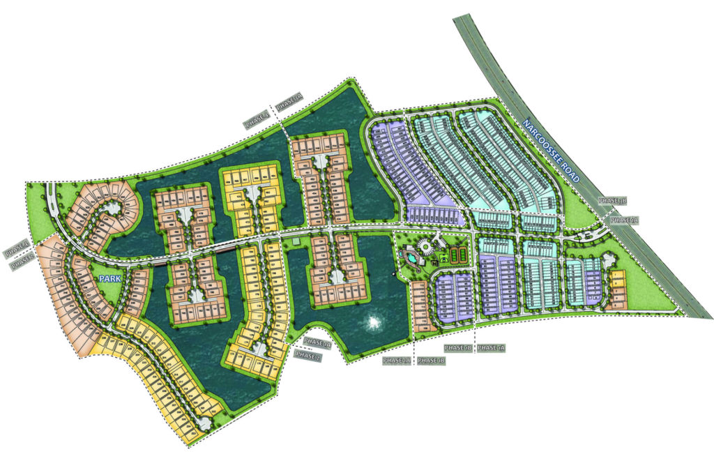
Preliminary drawings show an interconnected network of ponds with single-family homes backing up to water views, reminiscent of Lake Nona’s VillageWalk community.
“This will be one of the few gated new home communities in Lake Nona,” said Clint Ball, president of PulteGroup’s North Florida division. “It will offer a high-quality lifestyle at prices starting under $300,000.”

Amenities for the community include a clubhouse, resort-style pool, tot lot, sports courts, and, of course, water views at every turn. Sitting less than three miles from State Road 417, the Isles of Lake Nona is convenient to the health care facilities of Medical City and dining and retail options within the growing Lake Nona Town Center.
Isles of Lake Nona adds to the active list of communities Pulte Homes offers in Lake Nona. Current projects include the Enclave at VillageWalk, Somerset Landings, Somerset Crossings, and the almost sold out four-story townhomes in Laureate Park.
For more information, visit https://www.pulte.com/homes/florida/the-orlando-area/orlando/isles-at-lake-nona-210302 or call 888-386-2489.
Pulte Homes is a national brand of PulteGroup, Inc. (NYSE: PHM). Pulte Homes builds consumer-inspired homes and communities that provide the move-up buyer the best quality of life. Only Pulte Homes offers the combination of innovative Life Tested Home Designs® with an unwavering commitment to quality and attention to detail. For more information about Pulte Homes, visit www.pulte.com.
–
Sophia Rogers leads The Rogers Team at Premier Sotheby’s International Realty. Family, relationships and real estate are her passions. She can be reached at sophia@nonahoodnews.com.


